等我第二次装修一定要把这“5个设计”抄回家看着就很爽
都说第一次装修多多少少会留下一些遗憾,起初我是不相信的,想着细心一点,肯定能装出一个完美的家。
可当新家装好并入住进去后,我才发现小丑是自己。这哪是装修遗憾啊,简直处处都是生活痛点。
其实我家的鞋柜挺大的,虽然深度只有35cm,但宽度达到了160cm,并且考虑到了不同鞋子收纳,还设计了不同高度的隔层和结构造型。

可入住后,我才发现隔层结构越复杂,收纳率就越低,并且自己也没有几双长筒靴和中筒靴,既浪费了空间,又非常凌乱。
鞋柜内部只做隔层,不留杂物区,中间留两个抽屉放小物品,简洁又利索。隔层收纳精细化,不一样的种类的鞋子放到不同的隔层里,并且预留好相应的高度尺寸。

需要注意的是,隔层高度得通过你自己的情况预留。若不能确定就做活动隔层,并且多做一些隔板,方便后期调整。

如果鞋柜的深度能做到60cm左右,那么就给隔层安装上轨道,可以放两排鞋子,不用蹲下来或趴着才能找到鞋子。

洗碗机,算是厨房必备的电器了。尤其是对于我这种懒人来说,更是知道了“洗碗自由”是一种怎样的感受。

然而,让我比较遗憾的,由于洗碗机内嵌在橱柜里,每次洗碗都需要蹲着,或者弯着腰才能操作,非常不舒适。

首先要在厨房里做一组高柜,然后离地70cm内嵌洗碗机,也就是比橱柜台面稍微低一点,规避弯腰使用的痛苦。

特别说明,下图中该屋主身高在158cm,用起来十分舒适,你们可以结合自己的身高,灵活调整抬高尺寸。

此外,洗碗机抬高后,底部一定要做加固处理,可以用专用支架,也可以用加厚木板,避免后期使用时出现晃动的情况。

说实话,阳台在我的思维里,就该作为晾晒区使用。哪怕家里装了烘干机,有些衣服也还是晾晒比较好。

然而,让我比较头疼的是,每次到阳台上,头都会碰到晾晒的衣服,感觉很难受。还有家里来客时,也得提前把衣服收起来,要不然太尴尬。


2)洗衣房不一定要在南面,衣服也不一定要在阳光下晒暴,家里若有其它阳台,一样能改造成独立的洗衣房。

3)在南阳台一边开辟出一个1㎡洗衣房,深度有个1.2m左右就够用了,最后再用玻璃门隐藏起来,一样很实用。

Ps:建议我们大家不要过度依赖烘干机,家里一定得有一块晾晒区,哪怕小一点都没关系,但不能没有。
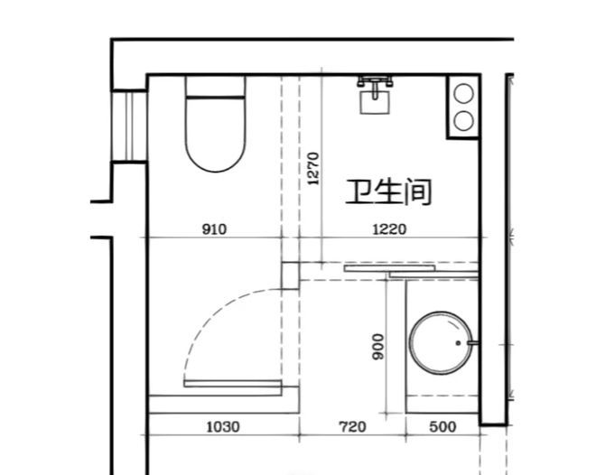
你以为给卫生间做干湿分离设计,就已经够用了吗?如果家里只有一个卫生间的话,哪怕是三口之家也完全不够用。

因为二分离设计,看似提升了生活使用效率,实际上同时上厕所和淋浴的情况,在生活中依旧很普遍。

最实用的做法,就是给卫生间做三分离设计,将洗漱、淋浴、马桶全部分开,真正的完成互不干扰,方法如下。

大多数家庭的卫生间面积都很小,所以能不能改造成三分离结构,墙体能不能拆是最关键的一点。若可以拆,那么就很简单。

1)最常见的三分离,就是卫生间门洞从中间开,淋浴区和马桶区分别设计在左右两边,中间洗漱区做开放式。


3)若是比较方正的卫生间,且不能做扩大处理,那么内部长宽至少达到2.2米左右,才能实现三分离。否则,会太拥挤。

如果家里的卫生间墙体不能拆,且面积比较小,那么就有一点困难了。不过我们大家可以借助相邻的空间单独规划。也就是做双马桶或双淋浴设计,使用率会更高。

此外,淋浴区也不一定要和卫生间挨在一起,只要能解决排水问题,家里任何一处都可以改造成独立的淋浴区,同样达到三分离目的。


可入住后,我发现有一个问题被忽视了。就是主卧里的衣帽间会收纳过剩,如果把孩子的衣服也收进衣帽间里,那么在生活中又会有一些不便。

最理想的做法,就是把衣帽间放到主卧外面,一来释放了主卧面积,二来让衣帽间完全独立。无论是三口之家,还是三代同堂家庭,都可通过衣帽间弥补收纳。

家里有多余的房间,可完全改造成一个独立的衣帽间。如果认为房间面积大,单独做衣帽间会浪费,还可以一分为二,或者改造成书房+衣帽间。

衣帽间不一定要有一个房间,若家里的过道墙体可以改造,在过道设计两组大衣柜,同样兼具衣帽间的收纳力。

若家里的玄关旁边有空间可通过,也可以将其打造成一个衣帽间。别担心收纳动线太远,要知道衣帽间多数都是用来收纳换季的衣物。

其实有些时候,真的是入住了才知道当初装修有哪些遗憾。而我们在参考别人家的设计思路时,也要结合自己真正的需求,切不可盲目的抄。
免责声明:本文来自凤凰号,仅代表凤凰号自媒体观点,与凤凰网无关。它的原创性以及文中叙述文字和内容信息没有经过本站证实,对本文以及其中全部或者部分内容、文字的真实性、完整性、及时性本站不作一切保证或承诺,请读者仅作参考,并请自己检查相关内容。
文明上网理性发言
- 上一篇: 福运盈门——天官赐福冰箱贴
- 下一篇: 天极网_专业IT门户
推荐灶具


